Stadtvilla 160 B-1
| Außenmaße | 10,28 m x 9,53 m |
| Dachform | Satteldach |
| Geschosse | 2 |
| Kniestock | 275 cm |
| Fassade | Putz od. Klinker |
| Raumhöhen | EG 2,57 m, DG 2,50 m (Lichte Rohbauhöhe) |
| Nettogrundfläche | EG 80 m², DG 80 m² |
| Nettogrundfläche gesamt | 160 m² |
| Wohnfläche ca. | EG 79 m², DG 77 m² |
| Wohnfläche gesamt | 156 m² |
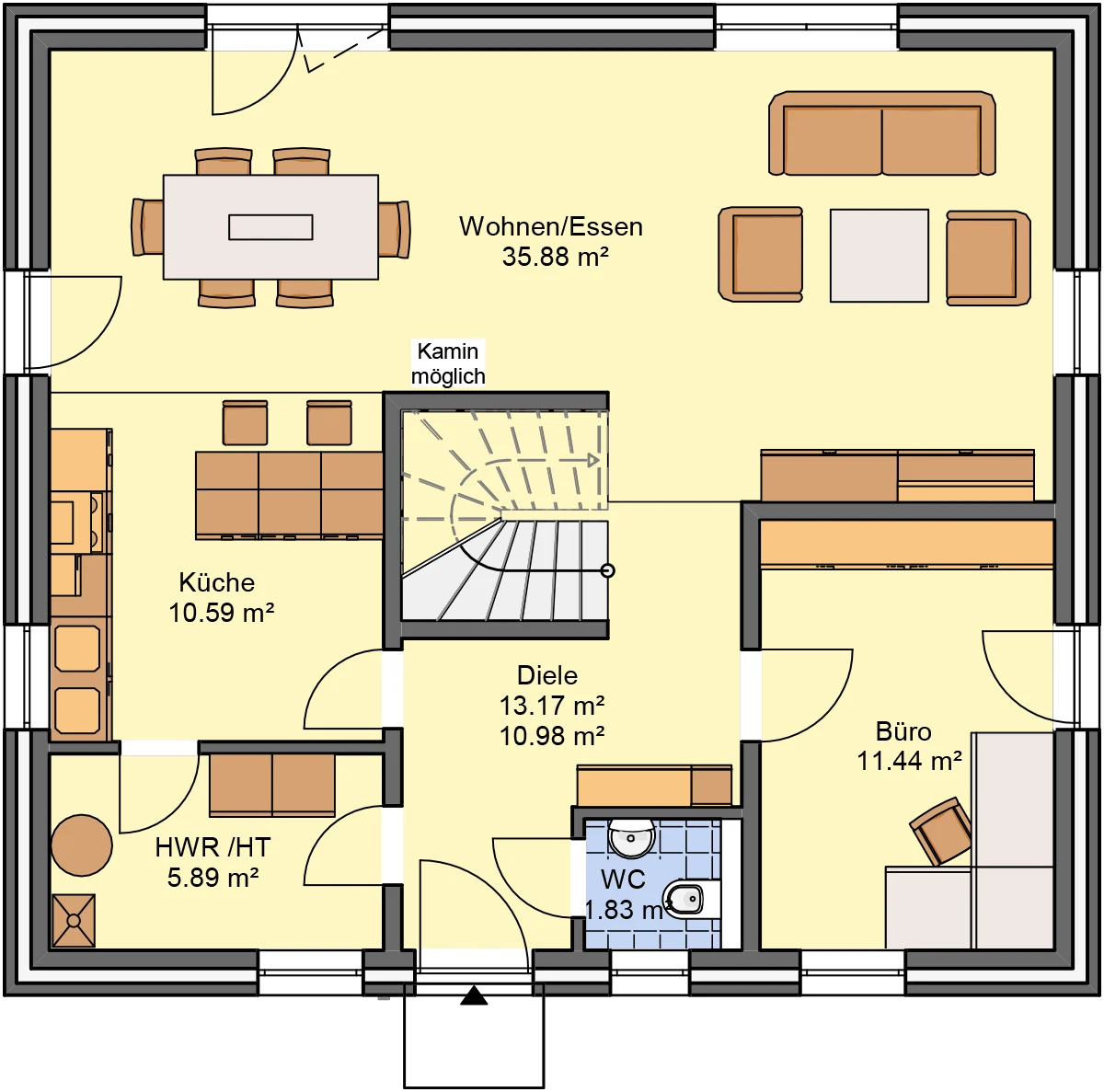
EG
DG
Im Festpreis enthalten:
Weitere Leistungen gemäß Baubeschreibung sind ebenfalls im Gesamtpreis enthalten:

Persönliches Expose anfordern
Planen Sie hier in der Region Hannover ein individuelles Bauvorhaben?
Schön – Wenden Sie sich für Ihre persönliche Beratung jetzt direkt an
die Modul Hausconcept GmbH.















