Einfamilienhaus Esprite 170 E
| Außenmaße | 11,53 m x 9,15 m |
| Dachform | Satteldach |
| Geschosse | 1.5 |
| Kniestock | 75 cm |
| Fassade | Putz od. Klinker |
| Raumhöhen | EG 2,57 m, DG 2,50 m (Lichte Rohbauhöhe) |
| Nettogrundfläche | EG 87 m², DG 88 m² |
| Nettogrundfläche gesamt | 175 m² |
| Wohnfläche ca. | EG 85 m², DG 70 m² |
| Wohnfläche gesamt | 155 m² |
EG
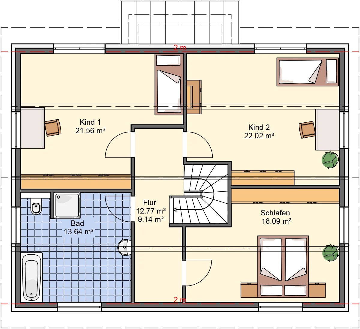
DG
Im Festpreis enthalten:
Weitere Leistungen gemäß Baubeschreibung sind ebenfalls im Gesamtpreis enthalten:

Persönliches Expose anfordern
Planen Sie hier in der Region Hannover ein individuelles Bauvorhaben?
Schön – Wenden Sie sich für Ihre persönliche Beratung jetzt direkt an
die Modul Hausconcept GmbH.













