Einfamilienhaus Esprite 170 B

Außenmaße11,53 m x 9,15 m
DachformSatteldach
Geschosse1.5
Kniestock75 cm
FassadePutz od. Klinker
RaumhöhenEG 2,57 m, DG 2,50 m (Lichte Rohbauhöhe)
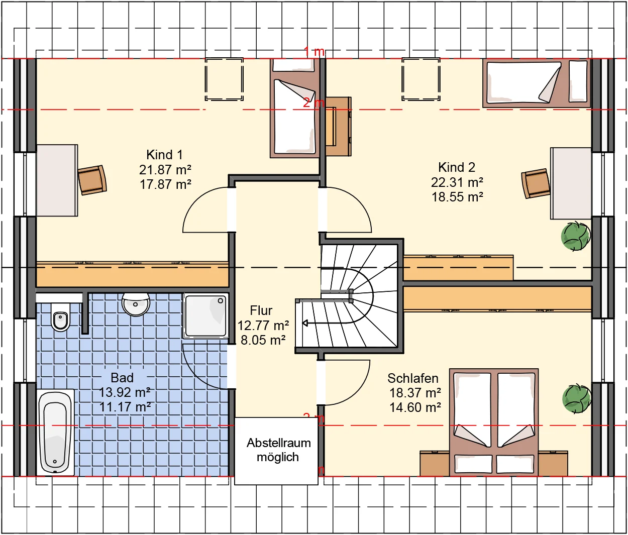
NettogrundflächeEG 87 m², DG 88 m²
Nettogrundfläche gesamt175 m²
Wohnfläche ca.EG 85 m², DG 70 m²
Wohnfläche gesamt155 m²

EG

DG

Im Festpreis enthalten:

  • individueller 3D-Planungstag
  • Bauantrags-, Entwässerungsunterlagen
  • Statische Nachweise und Bewehrungspläne
  • Wärmeschutznachweis mit Energieausweis
  • Sicherheits- und Gesundheitsschutzkoordinator (SiGeKo)
  • TÜV Begleitung und Abnahme (4 Termine)
  • Blower-Door-Test (Luftdichtigkeitstest)
  • Bauleistungs- / Rohbauversicherung
  • Betriebshaftpflichtversicherung
  • Vertragserfüllungsbürgschaft

Weitere Leistungen gemäß Baubeschreibung sind ebenfalls im Gesamtpreis enthalten:

  • Kostenkontrolle schon bei der Planung
  • Organisation der Absteckungsarbeiten vor Baubeginn
  • Koordination & Organisation Baustrom, Bauwasser, Hausanschlüsse
  • Bauablaufplan mit Fertigstellungsgarantie
  • Gewährleistungspaket mit Jahres-Check
  • Qualitätskontrolle während der Bauphase
  • Bewehrungsabnahme durch Statiker
Modul Hausconcept - Unsere Modulleistungen

Persönliches Expose anfordern

Name
Baugrundstück vorhanden?*Baugrundstück vorhanden?
Wann möchten Sie bauen?
Nachricht / Wünsche

Planen Sie hier in der Region Hannover ein individuelles Bauvorhaben?

Schön – Wenden Sie sich für Ihre persönliche Beratung jetzt direkt an
die Modul Hausconcept GmbH.