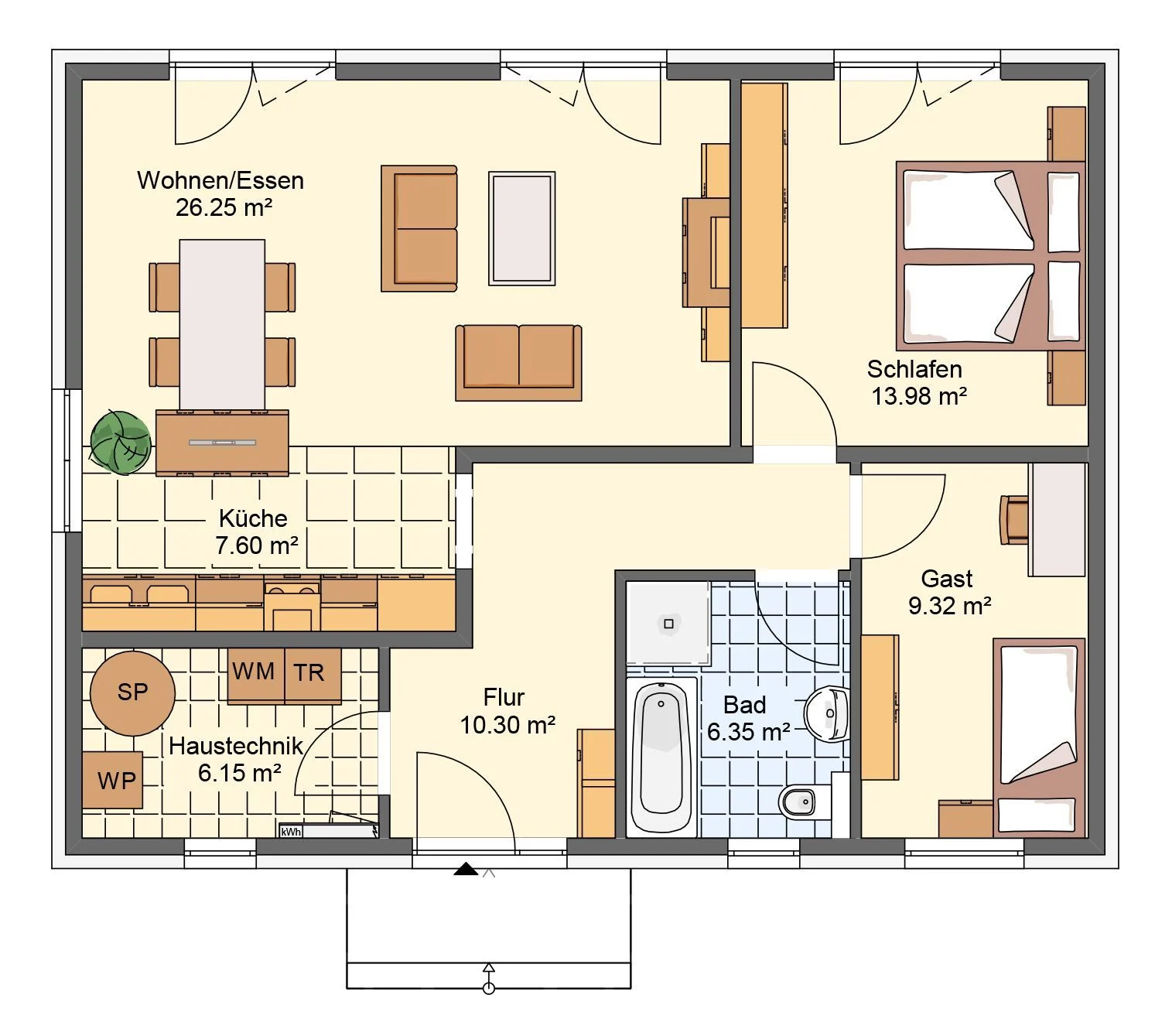
Bungalow 80
| Außenmaße | 11,27 m x 8,65 m |
| Dachform | Walmdach, Satteldach, Pultdach |
| Geschosse | 1 |
| Kniestock | cm |
| Fassade | Putz od. Klinker |
| Raumhöhen | EG 2,69 m, (Lichte Rohbauhöhe) |
| Nettogrundfläche | - |
| Nettogrundfläche gesamt | 80 m² |
| Wohnfläche ca. | - |
| Wohnfläche gesamt | 80 m² |
EG
DG
Im Festpreis enthalten:
Weitere Leistungen gemäß Baubeschreibung sind ebenfalls im Gesamtpreis enthalten:

Persönliches Expose anfordern
Planen Sie hier in der Region Hannover ein individuelles Bauvorhaben?
Schön – Wenden Sie sich für Ihre persönliche Beratung jetzt direkt an
die Modul Hausconcept GmbH.






